Продажа готового бизнеса/гостиницы у моря.
В собственности земля площадью 1570 кв. м, на которой располагаются:
2 здания с 16-ю гостевыми номерами и домом для личного проживания, а, также, кафе ( 80+ посадочных мест + летняя площадка), сауна, бассейн, мангальная зона, зоны отдыха для взрослых и детей.
Так же есть возможность приобрести включительно сад:
В номерах выполнен полноценный свежий ремонт (пол — кремовая плитка), отличное состояние внутренней и наружной части всех зданий и двора.
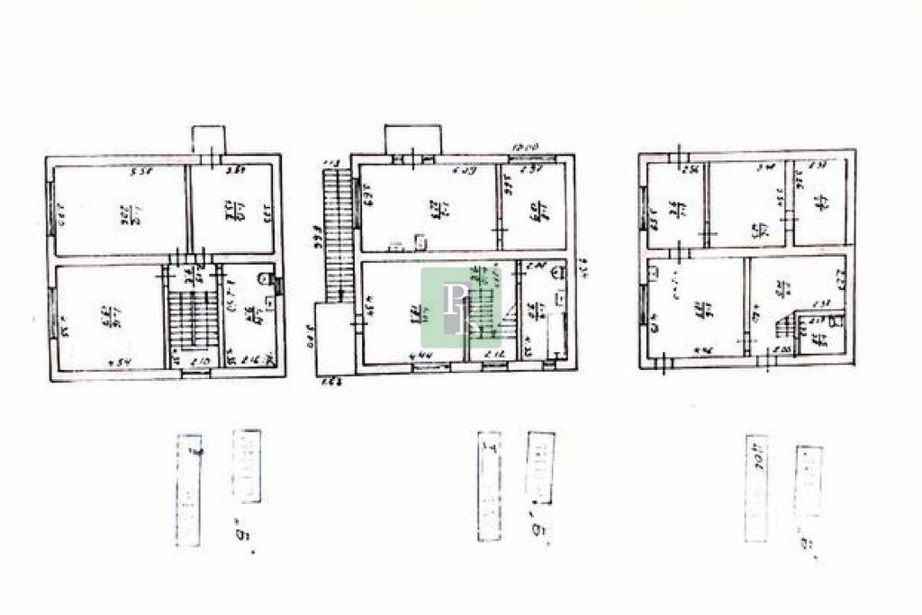
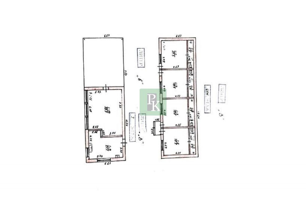
Описание объектов:
Первое здание: площадь — 400 кв. м;
Второе здание: площадь — 300 кв. м.
Удобства во всех номерах: санузел, холодильник, кондиционер, телевизор.
В 700 метрах расположен пляж.
Предоставляется база постоянных клиентов.
Земельный участок в собственности.
Возможные виды деятельности:
объект является действующим гостевым домом с наработанной клиентской базой. Для сдачи посуточно имеются 16 гостевых номеров.
Параметры объекта:
Технические характеристики:
Документы прошли юридическую проверку и полностью готовы к сделке
Позвоните нам, чтобы назначить просмотр!
3
3
700 м2
Свободного назначения
Первая линия
Отдельностоящее здание
Зальная
75 000 000 ₽

